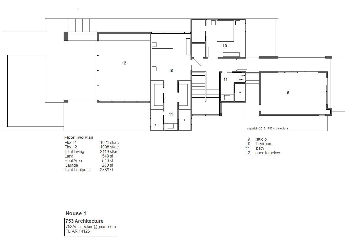
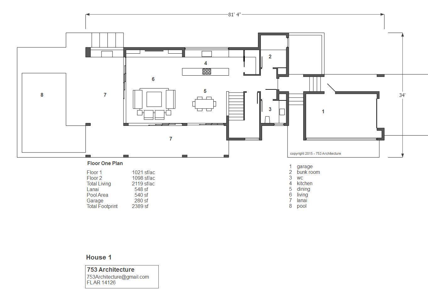
Folio Series House One February 22, 2015 753Architecture, Design Share this: Share on X (Opens in new window) X Share on Facebook (Opens in new window) Facebook Like Loading... Folio Series House One