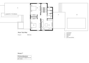
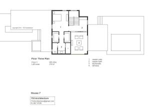
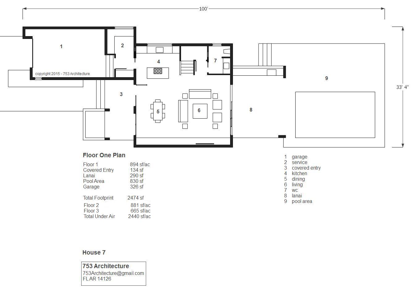
Folio Series House Seven February 27, 2015March 31, 2015 753Architecture, Dewhirst, Residential Design Share this: Share on X (Opens in new window) X Share on Facebook (Opens in new window) Facebook Like Loading... Folio Series House Seven