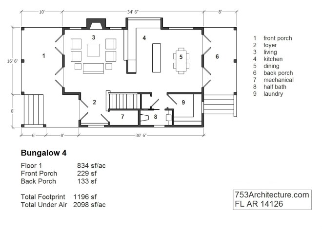
Bungalow 4 February 3, 2017February 4, 2017 753 Share this: Share on X (Opens in new window) X Share on Facebook (Opens in new window) Facebook Like Loading... Bungalow 4