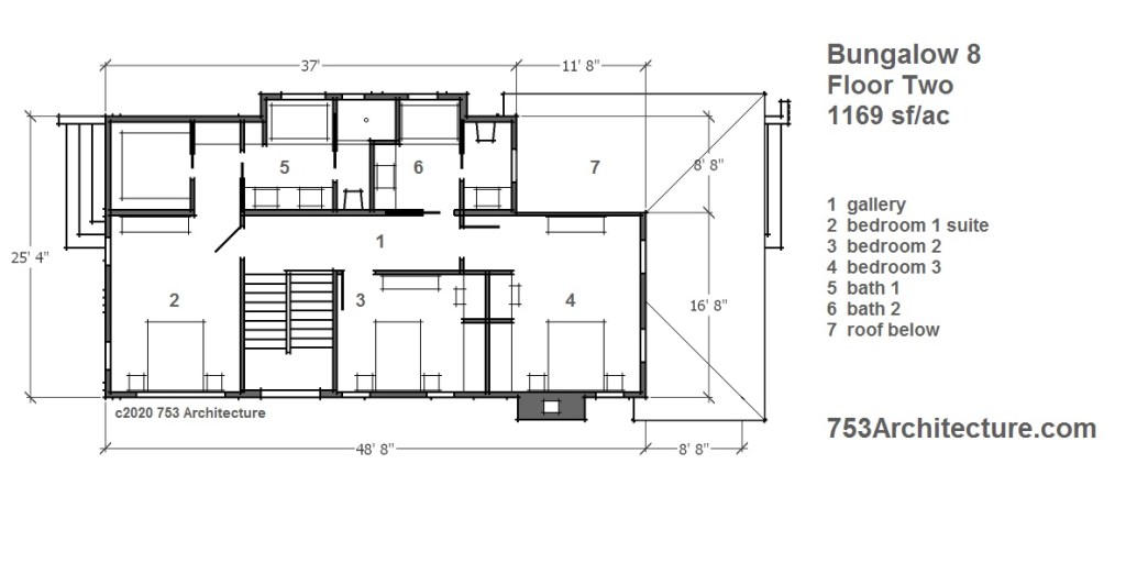
Bungalow 8 February 19, 2020 753Architecture, Residential Design Share this: Share on X (Opens in new window) X Share on Facebook (Opens in new window) Facebook Like Loading... Bungalow 8