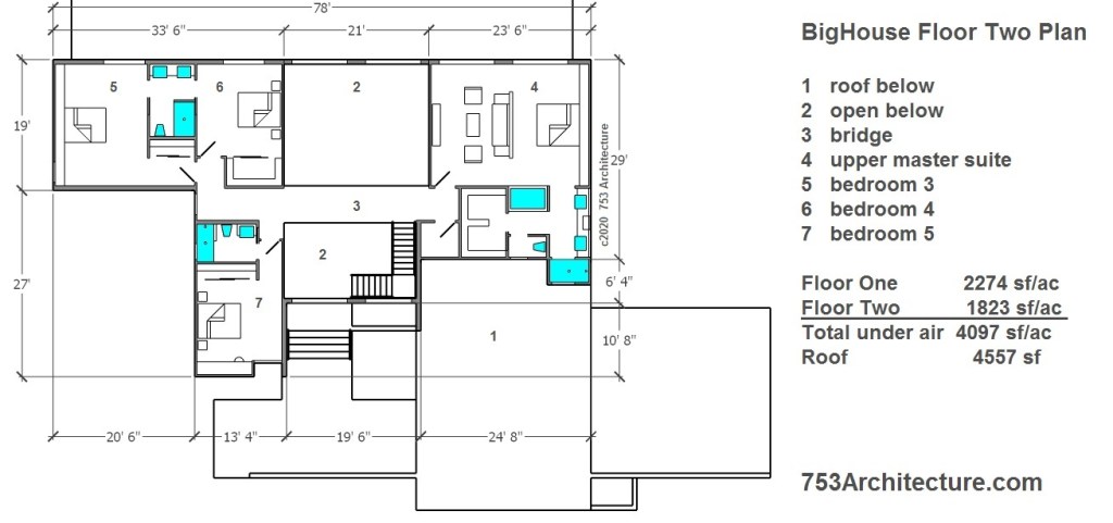
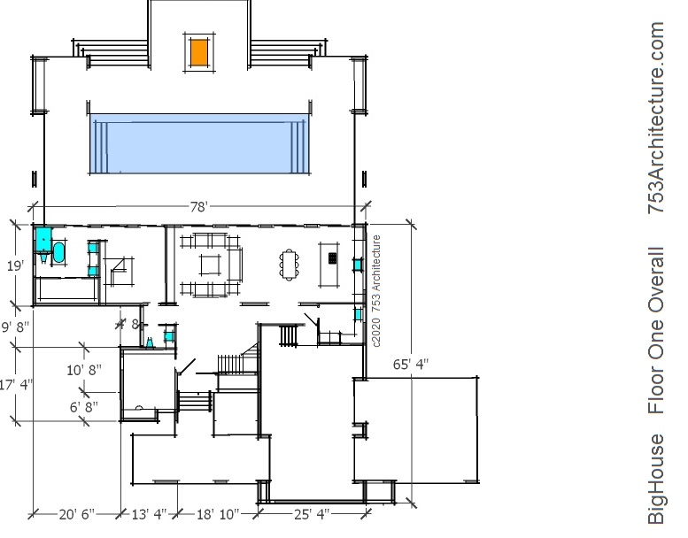
BigHouse March 31, 2020 753Large Home Plans, Residential Design Overall Plan Views – Detail Plan Views – Exterior Views – Share this: Share on X (Opens in new window) X Share on Facebook (Opens in new window) Facebook Like Loading... BigHouse
Nice. On Tue, Mar 31, 2020 at 11:44 AM 753 Architecture wrote: > 753 posted: ” Overall Plan Views – Detail Plan Views – Exterior Views – ” > LikeLike March 31, 2020 at 5:10 pm Reply
Nice.
On Tue, Mar 31, 2020 at 11:44 AM 753 Architecture wrote:
> 753 posted: ” Overall Plan Views – Detail Plan Views – Exterior Views – ” >
LikeLike