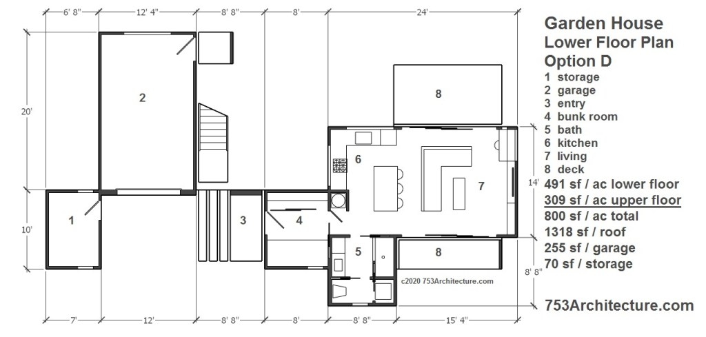
The Garden House sprouts more tectonic foliage in the form of a garage or workshop below and either guest quarters or income producing studio above. Square footage is consciously controlled.




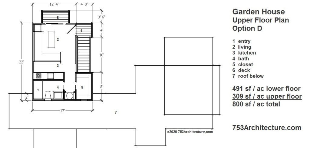
The Garden House sprouts more tectonic foliage in the form of a garage or workshop below and either guest quarters or income producing studio above. Square footage is consciously controlled.




I’ve been waiting for D.
LikeLike