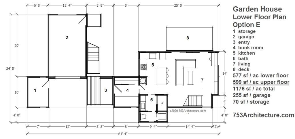
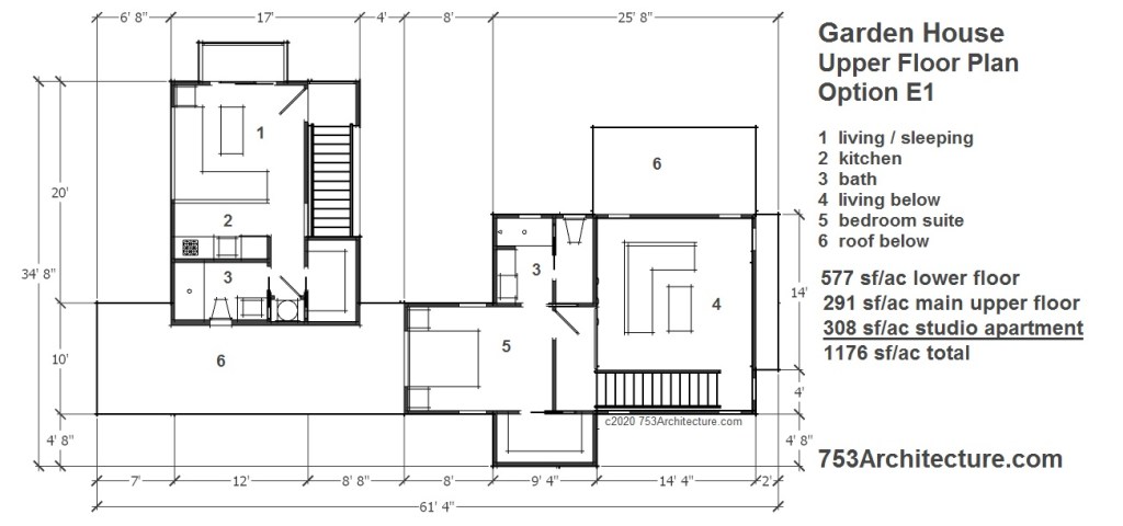
The Garden House is grown to mature form. Plans E1 and E2 offer alternative occupancy options like a choice between apples and oranges. The library is crucial to all options – the passive analog companion to active digital infinity. Yet, a home determined to be free of data scraping. No extraction of data at scale. No Nest. No Ring. No Hey Google. No Alexa. No surveillance dividend. No stealth. Always nature.







I like it.
Jim
On Mon, Feb 17, 2020 at 4:51 PM 753 Architecture wrote:
> 753 posted: ” The Garden House is grown to mature form. Plans E1 and E2 > offer alternative occupancy options like a choice between apples and > oranges. The library is crucial to all options – the passive analog > companion to active digital infinity. Yet, a home deter” >
LikeLike
thanks
LikeLike