One thought on “Morton

  1. James Edwards's avatar James Edwards says:

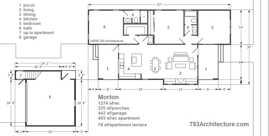
    This will work well in the historic neighborhoods which tend to have 50 foot lots. The City is also encouraging garage apartments in in-town neighborhoods.

    Jim

    On Tue, Feb 18, 2020 at 4:14 PM 753 Architecture wrote:

    > 753 posted: ” Infill design for an existing in-town subdivision. ” >

    Like

Leave a comment